20 Jahre M&V Veit Baumaschinen

zurück

Sunward SWSL0807DC Scherenarbeitsbühne

Leistungsstärke in luftigen Höhen

Preis* auf Anfrage

Arbeitshöhe (m):
8
Maschinenbreite (m):
0,74
Tragfähigkeit (kg):
230

Mietanfrage

Was ist die Summe aus 1 und 9?
 

24-H
Service

Lieferung
vor Ort

Ansprechpartner
vor Ort

Einsatzbereiche

Hoch- und Tiefbau EinsatzHoch-/Tiefbau
Baugewerbe EinsatzBaugewerbe

Mietanfrage

Bitte addieren Sie 8 und 4.
 

Die SUNWARD Scherenarbeitsbühne SWSL0807DC besticht durch ihre kompakte Größe, einen leistungsstarken Elektromotorantrieb und absolute Zuverlässigkeit. Mit einer beeindruckenden Tragfähigkeit von 230 kg ist sie ideal für das sichere Heben und Transportieren schwerer Lasten und somit perfekt geeignet für anspruchsvolle Bau- und Wartungsprojekte. Lassen Sie sich die SWSL0807DC direkt an Ihren Einsatzort liefern – unser Liefer- und Abholservice sorgt für einen reibungslosen Prozess.

Spezifikationen

Maximale Arbeitshöhe 8m
Nennlast 230kg
Sichere Arbeitslast der erweiterten Plattform 1 3kg
Maximale Anzahl von Arbeitern 2
Reisegeschwindigkeit (zurückgezogener Zustand) 4,5 km / h
Reisegeschwindigkeit (erweiterter Zustand) 0,8 km / h
Radius drehen (innen) 0m
Radius drehen (draußen) 1,67m
Aufsteigende / absteigende Geschwindigkeit 20s / 27s
Maximale Abladungsfähigkeit ** 25%
Maximal zulässiger Arbeitswinkel 1,5 ° / 3 °
Kontrolle Proportionale Kontrolle.
Fahrt DC-Motor hinten angetrieben
Multi-Scheibenbremse Zwei Vorderräder
Reifen - Airless ohne Impressum (Außendurchmesser x Breite) 323mm × 100mm
Batterie 4 × 6V / 210AH
Ladegerät 24V / 30A
Gewicht 1545kg

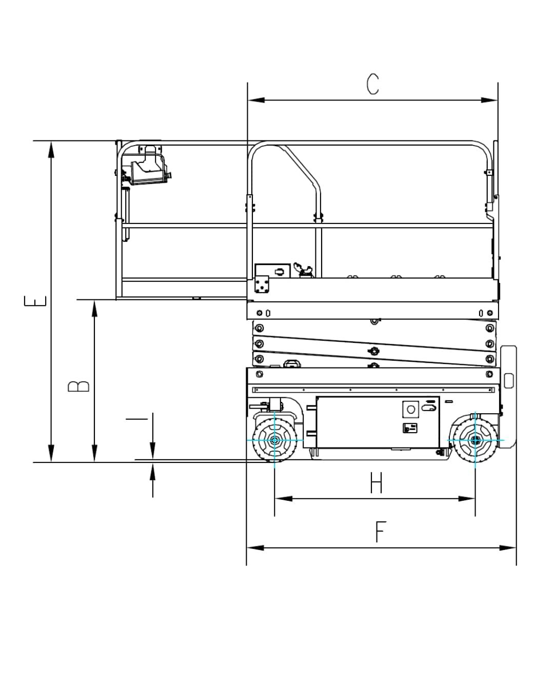
Abmessungen

A Maximale Plattformhöhe. Mit 6m
B Höhe der zurückgezogenen Plattform 1,05m
C Länge der Arbeitsplattform 1,7m
Erweiterungsdimension der Plattform 0,9m
D Breite der Arbeitsplattform 0,74 m
E Höhe - zurückgezogen (Guardrail angehoben) 2.17m
Höhe - zurückgezogen (Guardrail gefaltet) 1,79m
F Gesamtlänge 1.86m
G Gesamtbreite 0,76 m
H Rollbasis 1,38m
I Bodenfreigabe (zurückgezogener Zustand) 0,083m
J Bodenfreiheit (erweiterter Zustand) 0,02m
Technische Zeichnung der SWSL0807DC Scherenarbeitsbühne von vorne mit eingefahrener Bühne
SWSL0807DC Scherenarbeitsbühne - Seitenansicht im ausgefahrenen Zustand
Technische Zeichnung der SWSL0807DC Scherenarbeitsbühne von der Seite im zusammengeklappten Zustand

Leistungsstarke und effiziente Scherenbühne

Unsere Sunward SWSL0807 überzeugt durch ihr hohes Leistungsvermögen. Mit einer maximalen Arbeitshöhe von 8 Metern ermöglicht diese Scherenbühne das Erreichen von schwer zugänglichen Stellen. Ihre robuste Bauweise garantiert eine hohe Betriebssicherheit und Langlebigkeit, selbst unter den anspruchsvollsten Bedingungen.

SUNWARD Scherenarbeitsbühne SWSL0807DC überzeugt durch Leistungsstärke

Sicher durch Rollover-Schutzsystem

Die Sunward SWSL0807 DC wurde mit besonderem Augenmerk auf die Sicherheit entwickelt. Sie verfügt über ein Rollover-Schutzsystem, das im Falle eines Umkippens schützt, und ein System zum Schutz vor herabfallenden Gegenständen, das zusätzliche Sicherheit auf der Baustelle bietet. Diese Kombination aus fortschrittlicher Technologie und durchdachten Sicherheitsfunktionen setzt neue Standards in Sachen Baustellensicherheit.

Die SUNWARD Scherenarbeitsbühne SWSL0807DC

Sunward SWSL0807DC – energieeffizient und umweltbewusst

Die Scherenarbeitsbühne zeichnet sich durch ihre Energieeffizienz aus. Dank des fortschrittlichen Hydraulikantriebs verbraucht die Maschine weniger Energie, was nicht nur Kosten spart, sondern auch die Umwelt schont. Diese Effizienz macht sie zu einer idealen Wahl für Bauunternehmen, die ihre ökologischen Auswirkungen minimieren wollen, ohne dabei Kompromisse bei der Leistung einzugehen. Sie repräsentiert so das Beste aus beiden Welten: unübertroffene Leistung und ein starkes Engagement für den Umweltschutz.

Der Hydraulikantrieb der SUNWARD Scherenarbeitsbühne SWSL0807DC macht sie energieeffizient

Vielseitig einsetzbare Scherenarbeitsbühne

Die Sunward SWSL 0807 DC besticht durch ihren fortschrittlichen Hydraulikantrieb, der präzise Steuerung mit geringem Wartungsaufwand kombiniert. Dieser Antrieb ermöglicht es, dass die Scherenbühne selbst unter schwierigsten Bedingungen reibungslos und zuverlässig funktioniert. Ihre optimierte Konstruktion und der Schwenkwinkel ermöglichen den Einsatz in einer Vielzahl von Anwendungen und machen sie zu einem unverzichtbaren Werkzeug auf jeder Baustelle. Mit einer beeindruckenden maximalen Arbeitshöhe und einer robusten Bauweise ist sie für eine breite Palette von Anwendungen geeignet. Durch ihren geringen Wendekreis eignet sie sich außerdem auch für die Nutzung in engen Räumen, wenn es darum geht eine maximale Reichweite zu erzielen, wodurch sie sowohl im Innen- als auch Außenbereich angewendet werden kann.

Die SUNWARD Scherenarbeitsbühne SWSL0807DC zeigt sich robust und flexibel

Präzise Steuerung in großen Höhen

Die Sunward SWSL0807DC verfügt über benutzerfreundliches Bedienfeld hervor. Die klar angeordneten Steuerelemente ermöglichen eine präzise Steuerung der Bühne, was für feine Arbeiten in der Höhe unerlässlich ist. Diese Präzision ist besonders wichtig bei anspruchsvollen Aufgaben wie der Installation von Rohrleitungen oder dem Umgang mit empfindlichen Materialien. Neben der Präzision spielt auch die Kontrolle eine entscheidende Rolle.

Das Bedienfeld der SUNWARD Scherenarbeitsbühne SWSL0807DC, das sie so benutzerfreundlich macht

Flexibel einsetzbar – Die Sunward SWSL0807DC passt sich an

Die SUNWARD SWSL0907DC passt sich an Ihre individuellen Bedürfnisse an. Die solide Konstruktion und die Tragfähigkeit von 230 kg ermöglichen den Transport schwerer Werkzeuge und Materialien, was sie zu einer hervorragenden Lösung für komplexe Projekte macht. Zusätzlich bietet die Sunward SWSL0807DC eine beeindruckende Manövrierfähigkeit, die es dem Bediener ermöglicht, die Bühne auch in beengten Arbeitsumgebungen effektiv zu positionieren. Diese Kombination aus Flexibilität, Leistung und Sicherheit macht die Sunward SWSL0807DC zu einer erstklassigen Wahl für Fachleute, die eine zuverlässige und vielseitige Arbeitsbühne benötigen.

Flexibilität der SUNWARD Scherenarbeitsbühne SWSL0807DC
Radbagger mieten Service

24-H-Service

Service rund um die Uhr für Ihr Projekt.

Radbagger Lieferung regional

Lieferung
vor Ort

Lieferung aller Maschinen direkt zum Einsatzort.

Marken Mobilbagger Qualität

Marken-
qualität

Radlader mieten von höchster Qualität.

Preise Mobilbagger kaufen

Beste Preise
Konditionen

Profitieren Sie von unseren Top Angeboten und Preisen.

Kontakt Radbagger gebraucht kaufen

Ansprechpartner
vor Ort

Profitieren Sie von einem persönlichen Ansprechpartner.

Mobilbagger kaufen vor Ort

Regional
durch kurze Wege

Schnell vor Ort und unkompliziert im Service.

* Die Kalkulation der Ab-Preise beruht auf einer 1-Tagesmietdauer für Baumaschinen und Baugeräte, auf einer Monatsmietdauer ab 20 Miettagen. Individuelle Konditionen sind weiterhin gültig. Zudem verstehen sich die Mietpreise zuzüglich der jeweils gültigen MwSt. sowie der Versicherung von 7 % der Mietsumme und eventuell anfallender Kosten für Kraftstoff (Diesel 2,12€/L, Benzin 2,30€/L), Reinigung ab 15 min (60€/Stunde) und Maut für Transport.
Der Tagesmietpreis basiert auf einer Nutzung von 8 Betriebsstunden je Werktag, d. h. Montag bis Freitag. Jede Mehrstunde Nutzung wird mit 1/8 des jeweiligen Tagesmietpreises berechnet. Eine Verkürzung der Mietdauer führt zu einer Preisanpassung. Eine Vergütung von Minderstunden erfolgt nicht.  Für Reifen, Plattfüße, zerstörte Decken haftet der Mieter. Die Bedienungsanleitung ist zu beachten. Mieter und Abholer haften als Gesamtschuldner. Das Übergabe- / Rückgabeprotokoll ist Bestandteil des Mietvertrages. Die täglichen Wartungsarbeiten Öl, Wasser usw. muss der Mieter täglich kontrollieren.  Von der MB-Versicherung sind ausgeschlossen: Verlust, Diebstahl, zufälliger Untergang, Verschleiss, Reifen, Anbaugeräte, Schäden durch grob fahrlässiger oder vorsätzlicher Verursachung eines Unfalls.

Ansprechpartner Radbagger neu und gebraucht kaufen

Sie haben Fragen?

Wir helfen Ihnen gerne weiter!

Tel.: 07157 5299 200
E-Mail: kontakt@baumaschinen-veit.de

Ihre Spezialisten bei Miete, Verkauf und Service von Baumaschinen!

Baumaschinen mieten und kaufen bei M&V Veit

Zurück